Este site utiliza cookies para permitir a mudança de língua e o armazenamento dos seus imóveis favoritos. Ao utilizar este site, concorda que o mesmo utilize cookies.

Casa de Pedra em Bonita Aldeia – Serra da Estrela

32.000€



Referência

FS-535Z

Natureza

Venda

Tipo de Imóvel

Moradia

Tipologia

T2

Estado

Por Recuperar

Certificado energético

Isento

Ano

1937


Distrito

Castelo Branco

Concelho

Covilhã

Freguesia

Teixoso e Sarzedo

Código Postal

6200


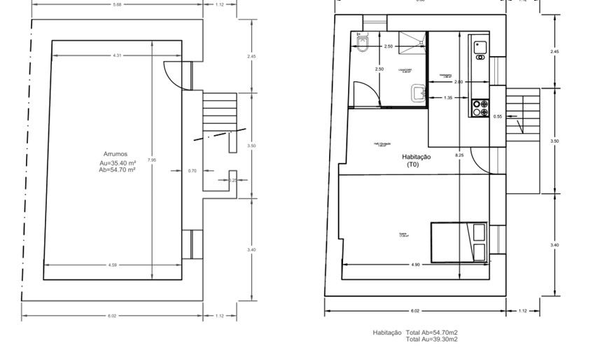
Área Útil

74 m2

Área Bruta

108 m2

Área de Terreno

0 m2

Partilhar



Contactar Imobiliária

*Preenchimento obrigatório
Ao clicar em 'Enviar', declara que aceita a nossa Política de Privacidade.
Situada na tranquila aldeia do Sarzedo, Covilhã, esta casa de pedra é um refúgio para quem procura paz e beleza natural. Já tem telhado novo, placa, e está toda ampla, com projeto de arquitetura aprovado que pode alterar a seu gosto.
Fica a 11km da vila do Teixoso e a 15 km da cidade da Covilhã.  A bonita praia fluvial de Verdelhos fica a 9 km e a praia fluvial de Valhelhas fica a 18 km. 
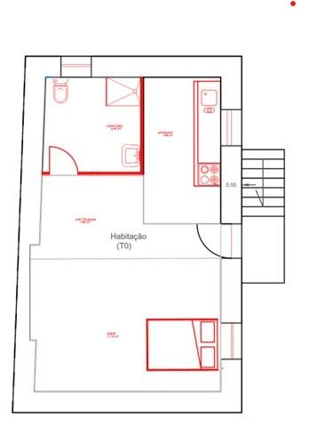
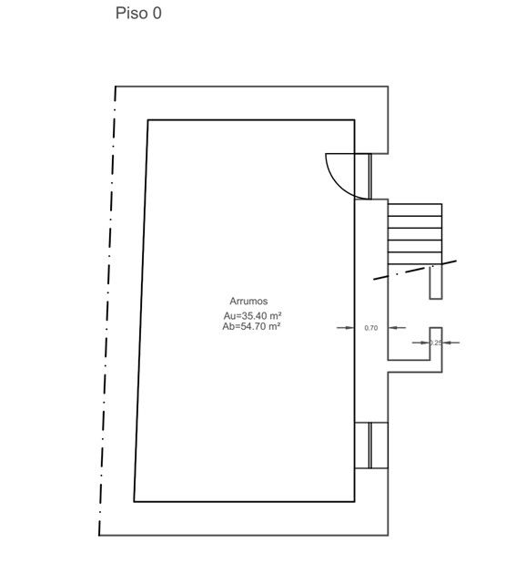
A casa tem 2 andares, a área total é 108 m2. A aldeia tem poucos habitantes, fica rodeada de montanhas, com vistas fabulosas e tem várias fontes de água de nascente. 
Geral
VistasSerra:Sim
Exposição SolarSul:Sim
GeraisNº de Casas de Banho:1
GeraisSótão:Sim
Edificio
GeraisNº de Frentes :2
GeraisNº de Pisos:2
Zona
CentralidadeRural:Sim
ProximidadePadarias:Sim
AcessosAlcatrão:Sim

Este imóvel não tem áreas definidas.

Imóveis
Semelhantes

Moradia
Venda
Aldeia com Praia Fluvial

39.000€

Casa T4 perto da Praia Fluvial

39.000€

Castelo Branco / Covilhã / Verdelhos


Ref: FS-531Dd

Ref: FS-531Dd

52 m2

4

2

Isento

Moradia
Venda
Moradia T4, Anexos e Garagens

540.000€

Moradia T4 com Anexos e Garagens - Covilhã

540.000€

Castelo Branco / Covilhã / Teixoso e Sarzedo


Ref: FS-461E

Ref: FS-461E

455 m2

4

4

Em execução

Moradia
Venda

65.000€

Moradia T4 Sao francisco Assis Fundão

65.000€

Castelo Branco / Covilhã / Aldeia de São Francisco de Assis


Ref: BRR2025009

Ref: BRR2025009

80 m2

3

1

Isento